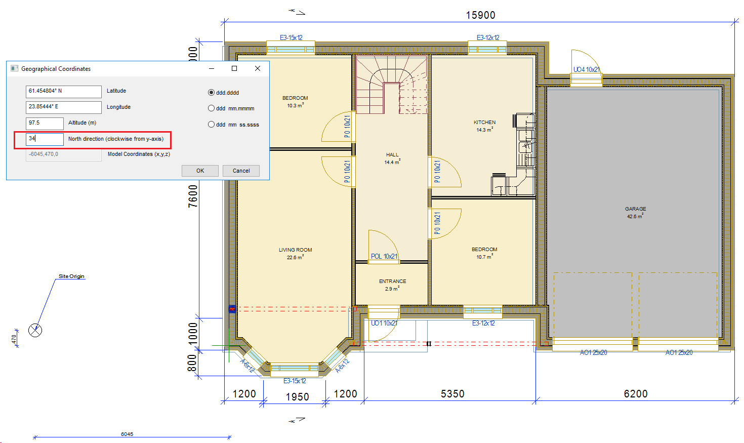
Coordinates in IFC Export
Different options in IFC export
- Start IFC Export from File → Export → IFC Export

- Select which origin and direction to use from "Coordinates relative to:" -selection
- Result of exported model
Source model and origin

Result of exported IFC model using different export options
Building origin

Site origin, true north

Site origin, project north (north parallel to y-axis)
