Vertex Wall Engineering
Wall engineering for light gauge steel wall panels
You asked and we delivered! Vertex wall engineering is a highly requested tool for light gauge steel wall constructions. It is now added in Vertex BD 2024. It allows users to check the capacity of studs, headers and lintels in the wall structures against the reactions from the trusses above.
After truss engineering is finished, Vertex wall engineering extracts the unfactored reaction loads and apply them onto the wall panels beneth automatically. Users can also apply any additional loads if needed. The benefits of this tools are:
UI
Vertex wall engineering uses the same tool as truss engineering. Simply make sure you are in wall model pairs.
Loads transferred from the trusses above are clearly visualised.


Outputs
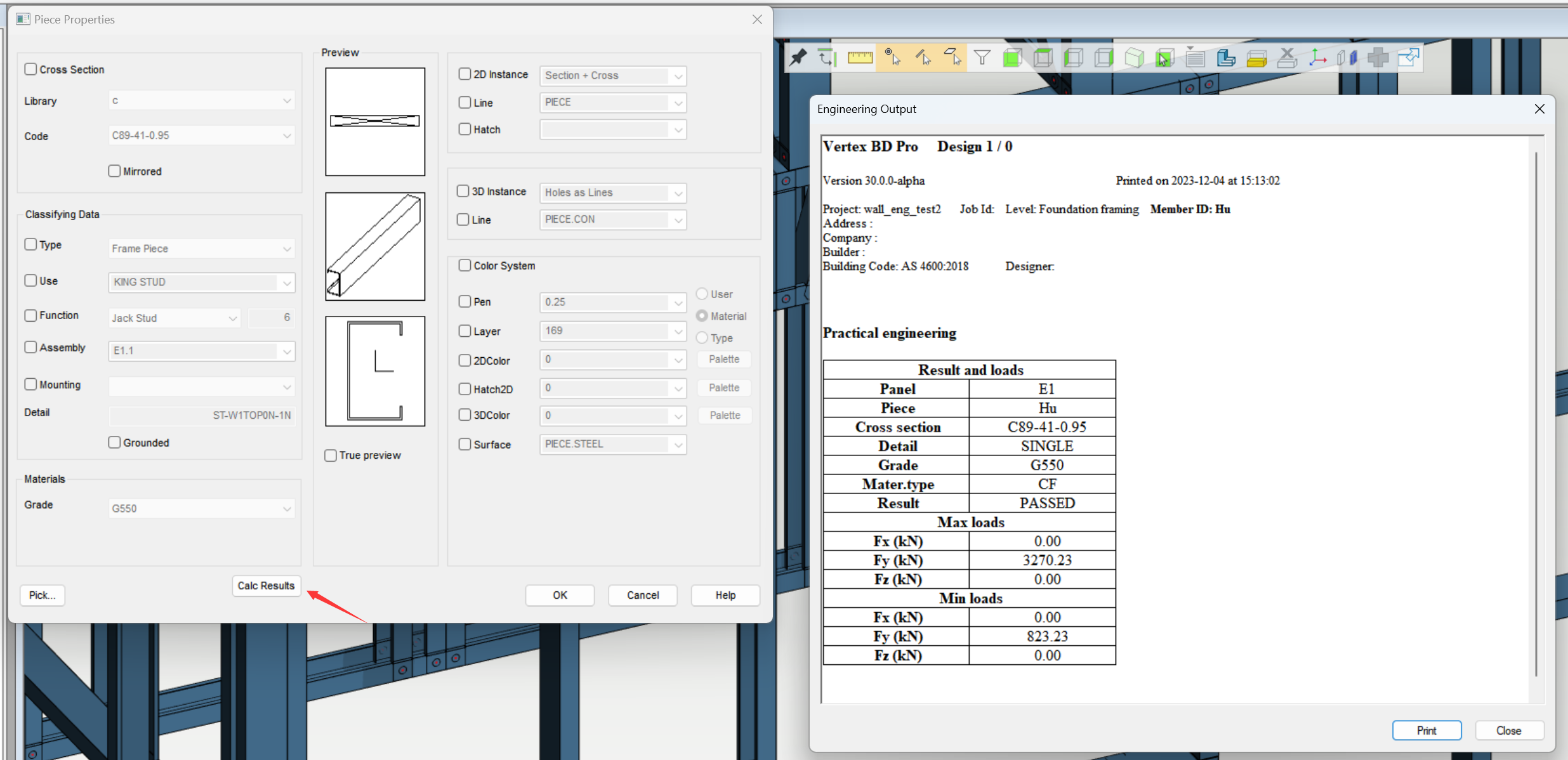
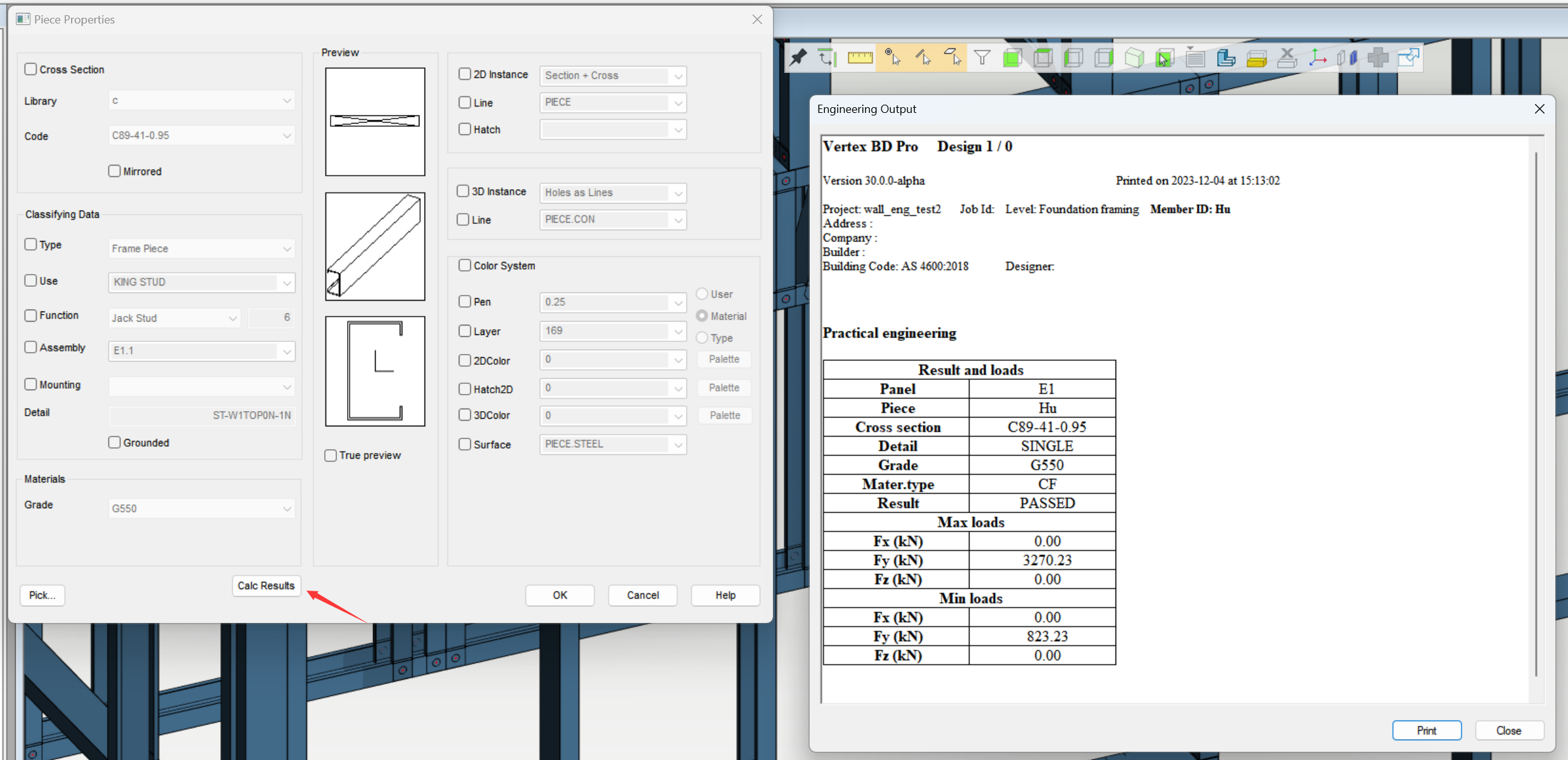
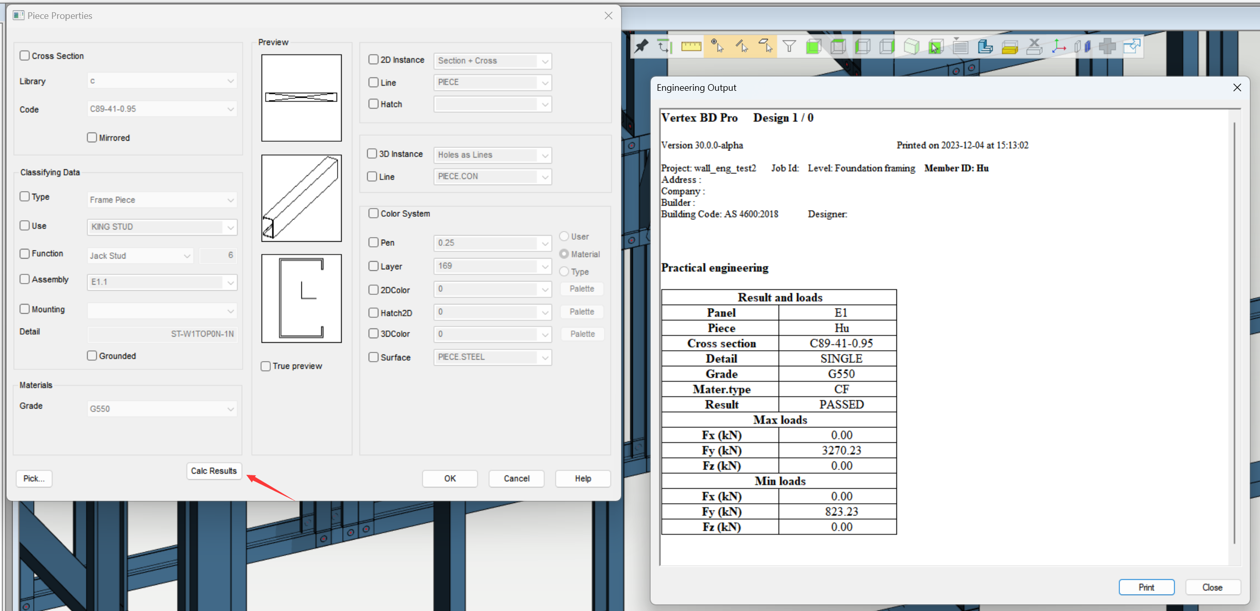
User can find more information about the engineering results of each pieces in Piece Properties.


To read more about wall engineering and step-by-step instruction, please read Wall Engineering Guide.