Skip to main content
Skip table of contents

8.3 Valley / Saddle trusses



  • Now we can create Valley / Saddle trusses in the transitional area where the two roofs interface.
  • Click on Trusses → Valley Trusses


  • Set the spacing for Valley trusses  and click on OK


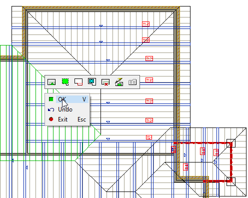
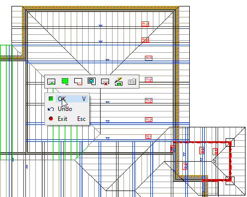
  • Select above slopes as shown.
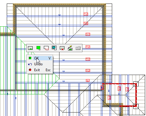
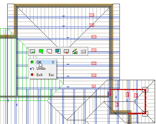
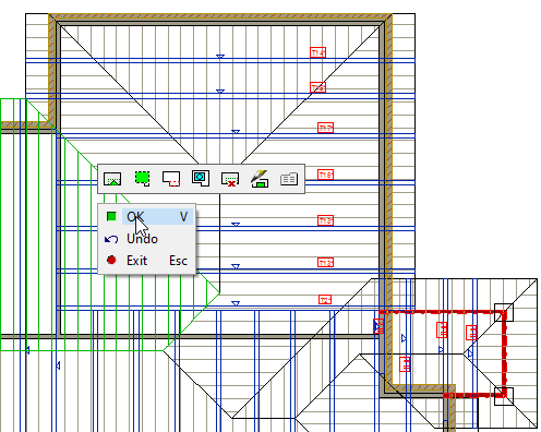
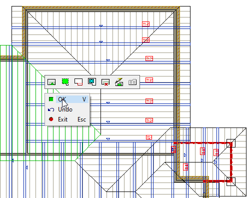
  • Right click and from the contextual menu click on OK  to confirm OR  Press ‘V’ to confirm.



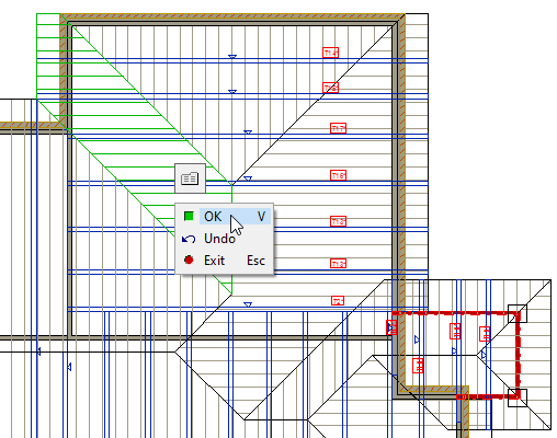
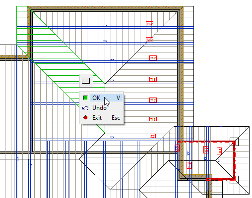
  • Select below slopes as shown. 
  • Right click and from the contextual menu click on OK  to confirm OR Press ‘V’ to confirm.


  • Right Click and from contextual menu select the ‘From Both Ends’ button.     ( This spaces the trusses towards the centre from each end of the selected points ).




  • Select the points for the extent of the truss spacing.
  • Select the first point ( as shown ) as you move the cursor towards the left hand side, with the appearance of this 
     sign click Left mouse button  OR  Press U, that will lock the cursor in X Axis.
  • Select the last point ( as shown )  Right click and from the contextual menu click on OK to confirm OR press ‘V’ to Confirm. 



  • Little menu pops up asking to delete old trusses, Click on NO 


  • You now have the Valley / saddle trusses ( as shown ). 
  • You may have to move, stretch, delete or align them, depends on the suitability and then don't forget to update update them.


  



  • Press F2 to switch to 3D view


  












JavaScript errors detected

Please note, these errors can depend on your browser setup.

If this problem persists, please contact our support.