Publisher
Three different ways to publish multiple panel drawings
Managing panel drawings is much easier if you use multiple panel drawing views for panels.
Now, it is possible to add a macro (frame) with a specific code for defining a printing area. You can use that code in the publisher to handle different outputs. You save a lot of time with this, as it is no longer necessary to print each drawing manually.
The example panel drawing has 3 different views with a macro with the code WINPLOT added.

1. All panel drawings in one pdf book (each drawing in own page)


2. All panel drawings of each panel in their own pdf book (panel by panel)


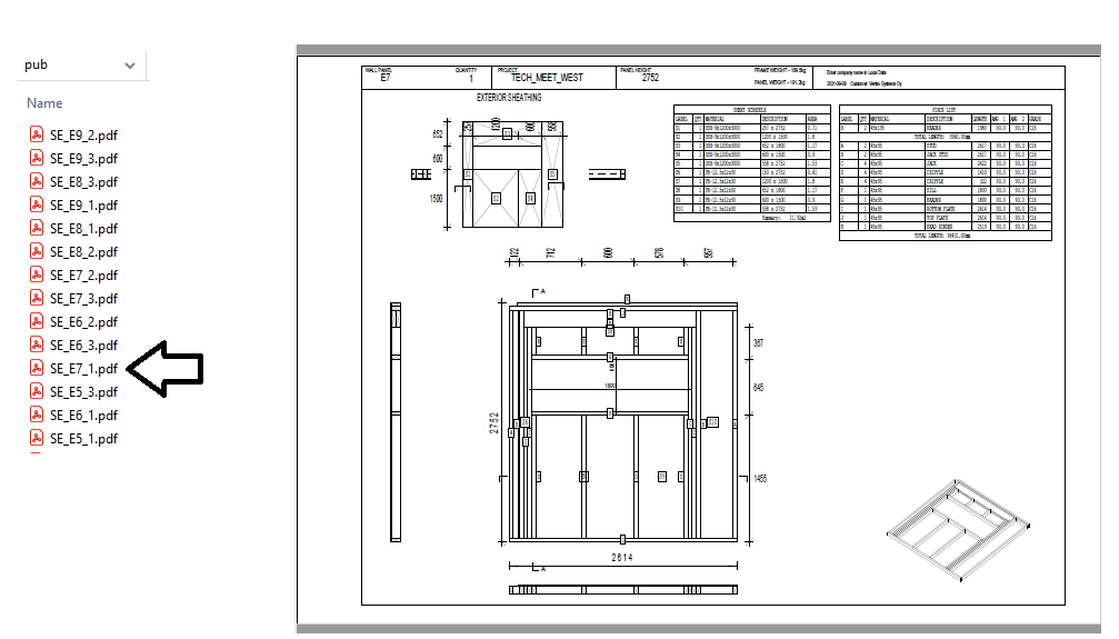
3. All panel drawings in their own pdf files (each drawing in own file)


Other
New wildcards:
$ for letters and ¤ for non-numbers.
All recognized wildcard characters in expression:
* = zero or more occurrences of any character
? = one occurrence of any character
# = one occurrence of any digit
$ = one occurrence of any letter (a-z)
¤ = one occurrence of any not digit