Copy 1st Floor Walls to 2nd Floor
Walls of different floors are added in their own drawing-model pairs. If necessary, you can copy objects from the active drawing-model pair to another drawing-model pair. If, for example, the exterior walls of a building are similar on both the first and second floors of the building, you can copy the walls of the first floor to the floor plan of the second floor.
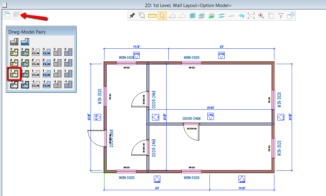
- Activate 1st level Wall Layout

Note. your Drawing-Model Pairs dialog may look different. - Select the objects you'd like to copy to 2nd floor. To select all, press Ctrl + A on your keyboard.

- Right-click and select Advanced -> Copy to Another Floor

Then select 2nd level, wall layout
- Click Yes

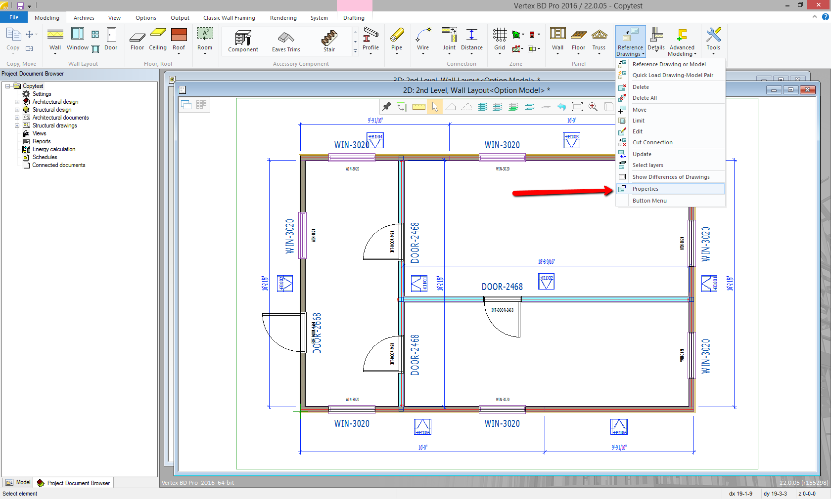
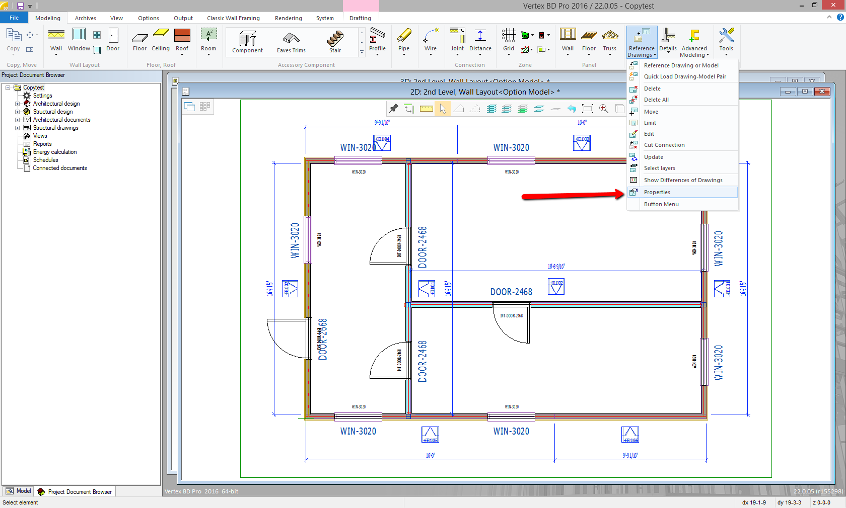
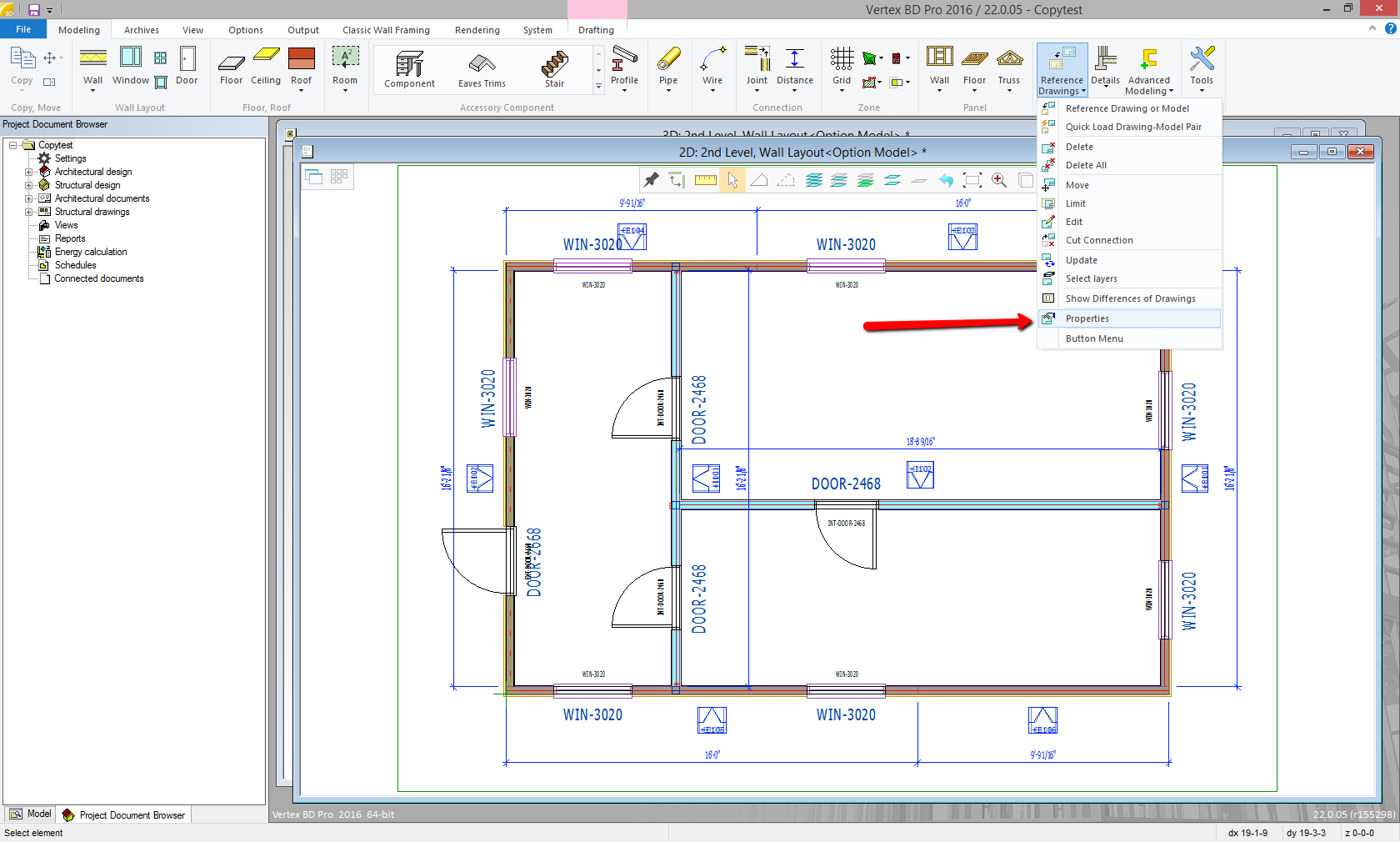
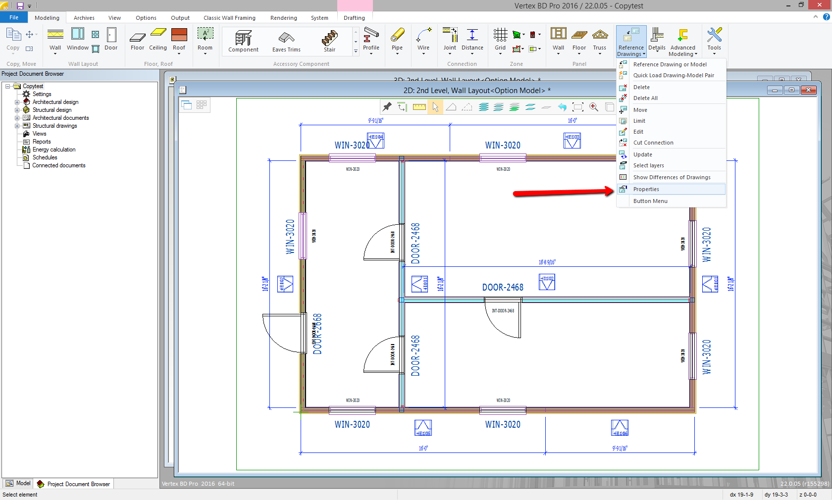
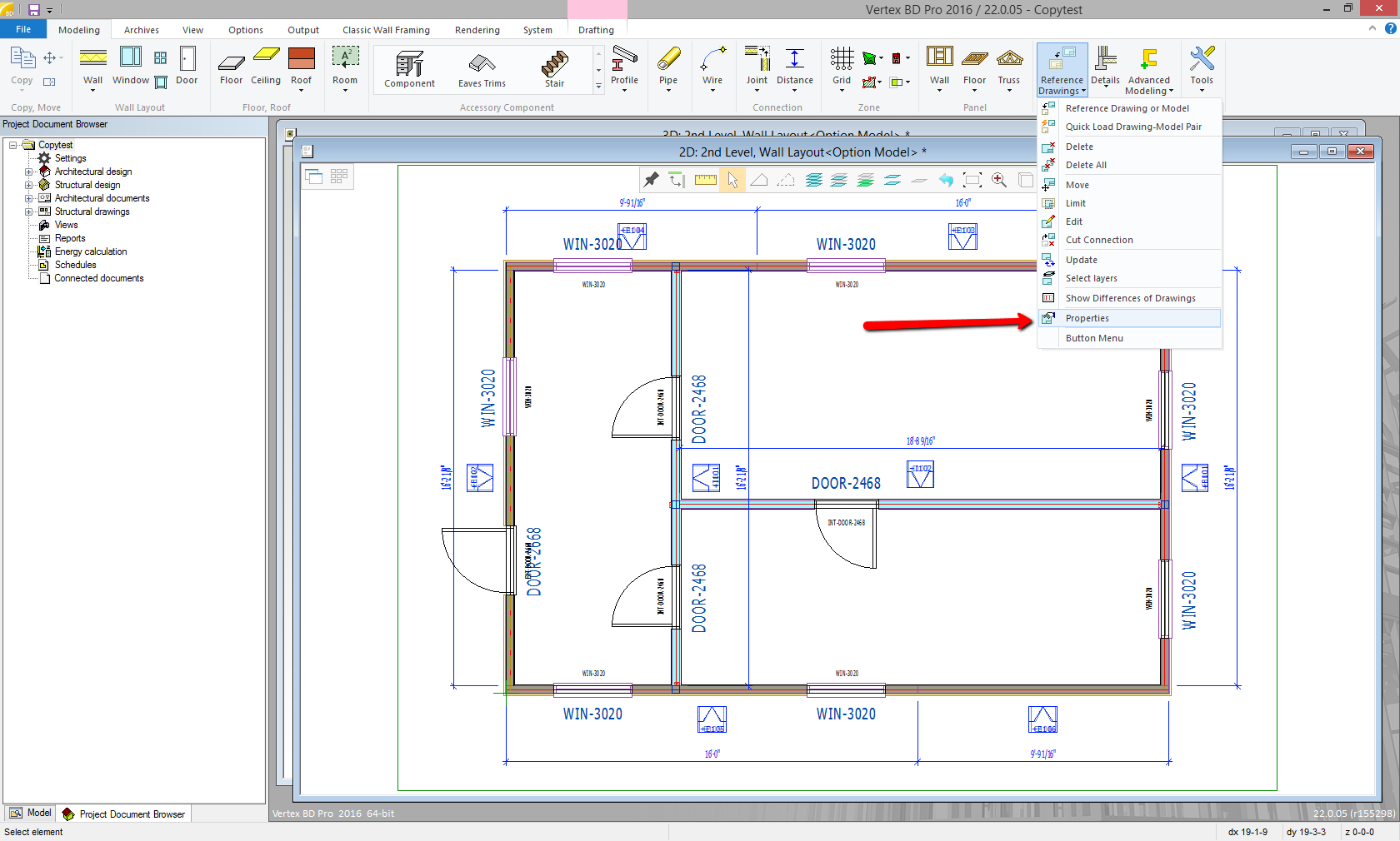
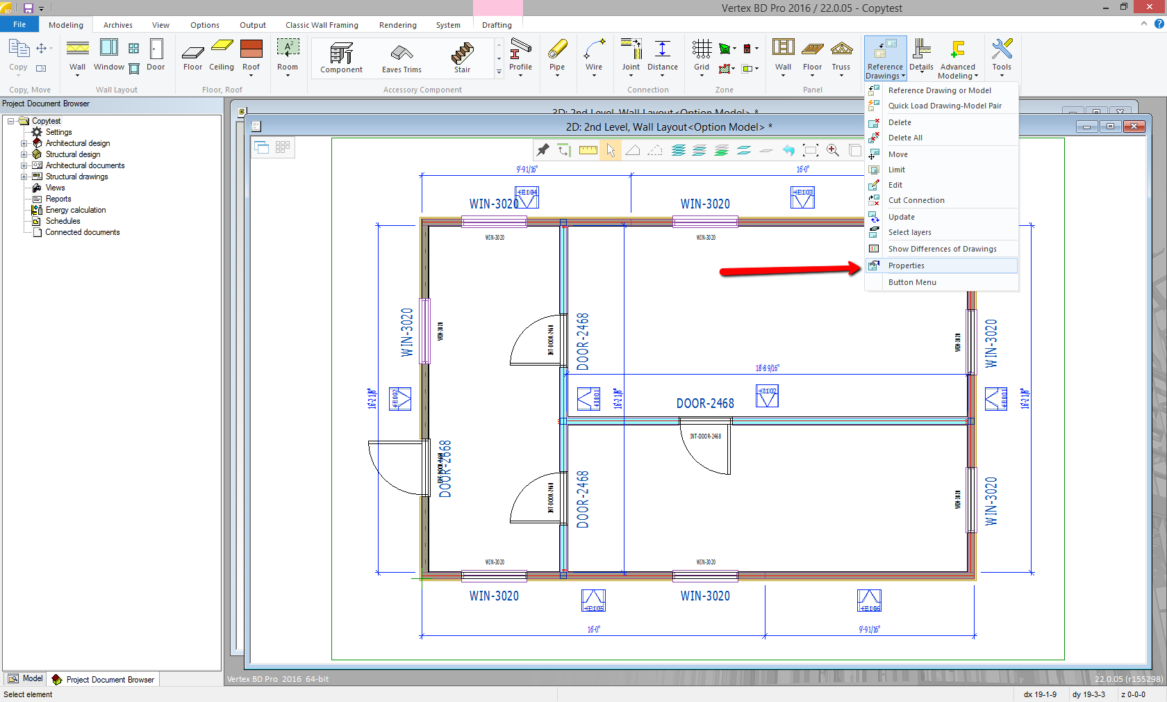
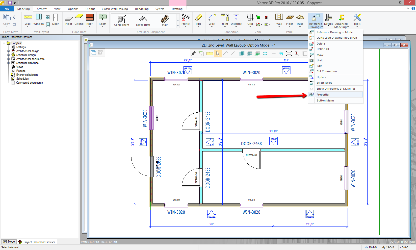
- If needed, hide the 1st floor reference drawing. On the Modeling Tab, click Reference Drawings -> Properties

And unselect 1walls.vxp
- 1st floor walls, doors, windows and panels have been copied to 2nd floor.

Learn more how to Change Wall Panel Labels