Change Wall Panel Labels
For classic wall panels that have been copied to another floor in which the wall heights are identical, the Change Wall Panel Labels utility can be used to globally change the panel IDs of the active drawing. The active floor plan as well as the respective wall panel elevation drawing files will be automatically updated.
Localized Feature: Imperial Units
This feature may not be available in all global regions.
Regarding the Wall Panel ID
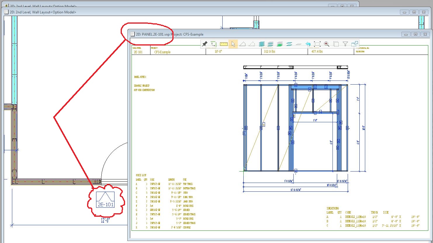
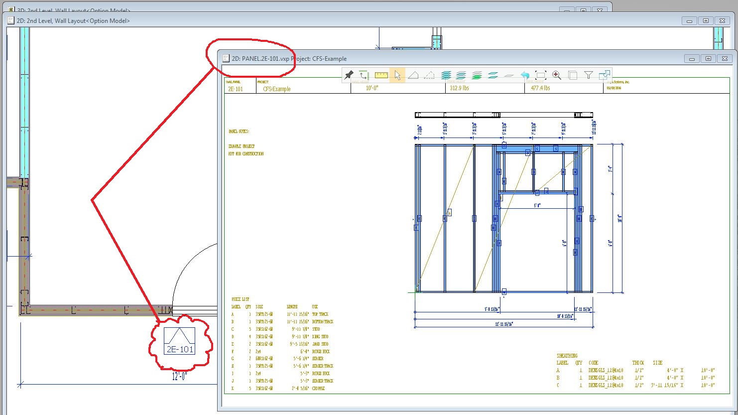
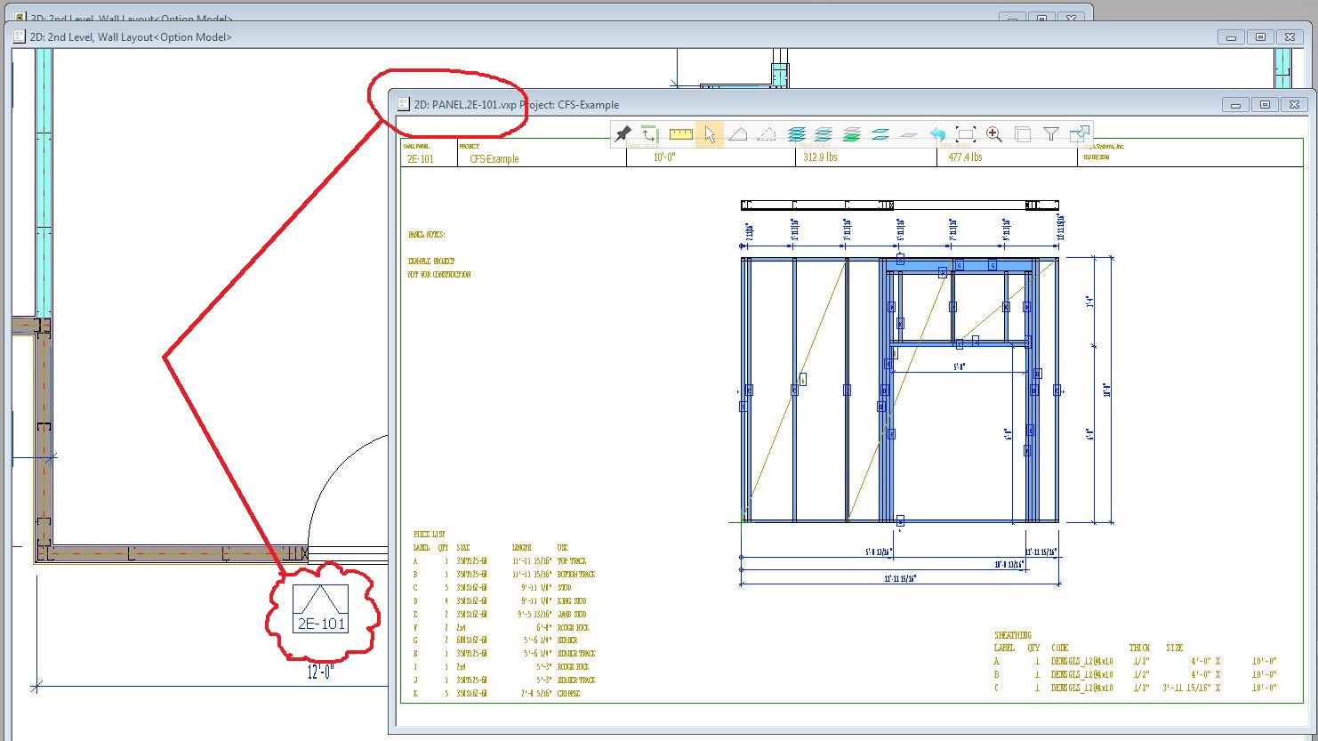
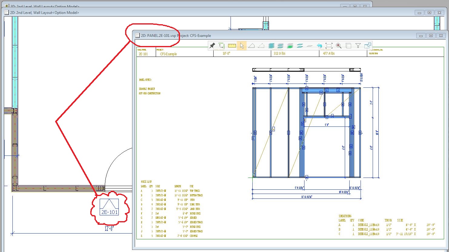
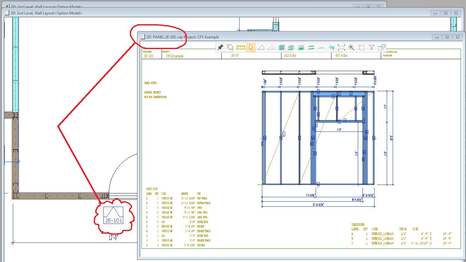
As shown in the Wall Panel Properties dialogue example below, the Panel ID is the combination of the panel prefix (1E-) and the panel number (101). The panel prefix can be used to identify, not only the panel types (Exterior vs Interior) but also, the different floors or other parts of the project to where the panels belong. In the example below, panel prefix (1E-) refers to a 1st Level Exterior Wall Panel.

For Walls and Wall Panels that have been copied to another floor:
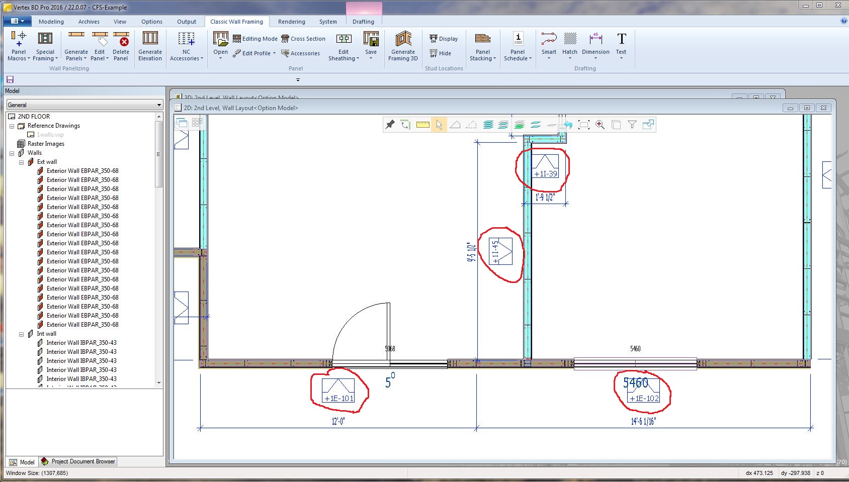
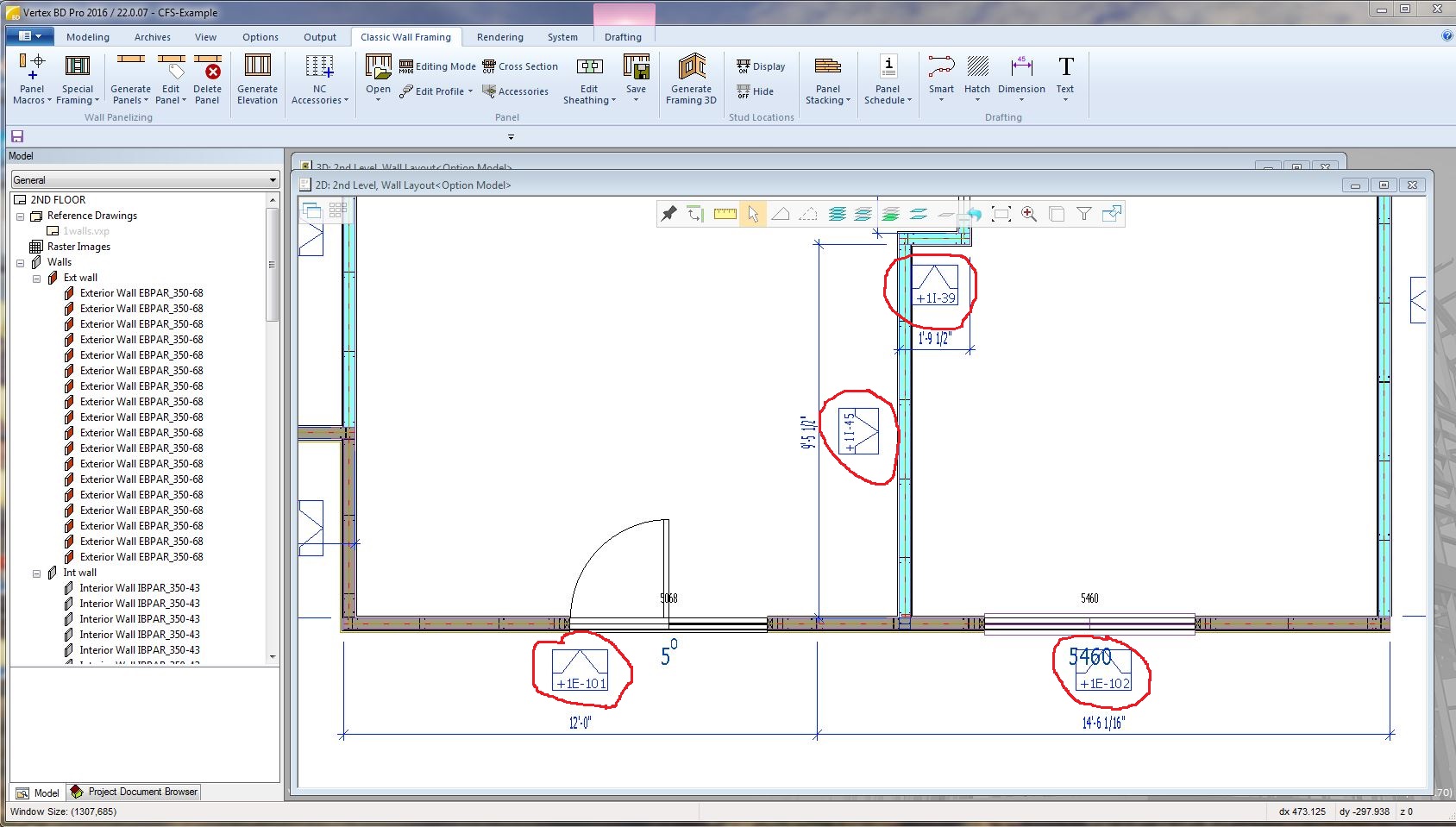
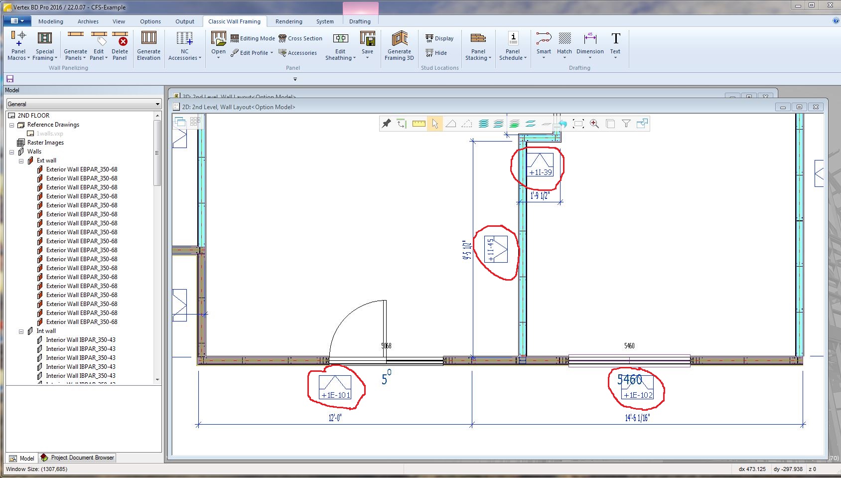
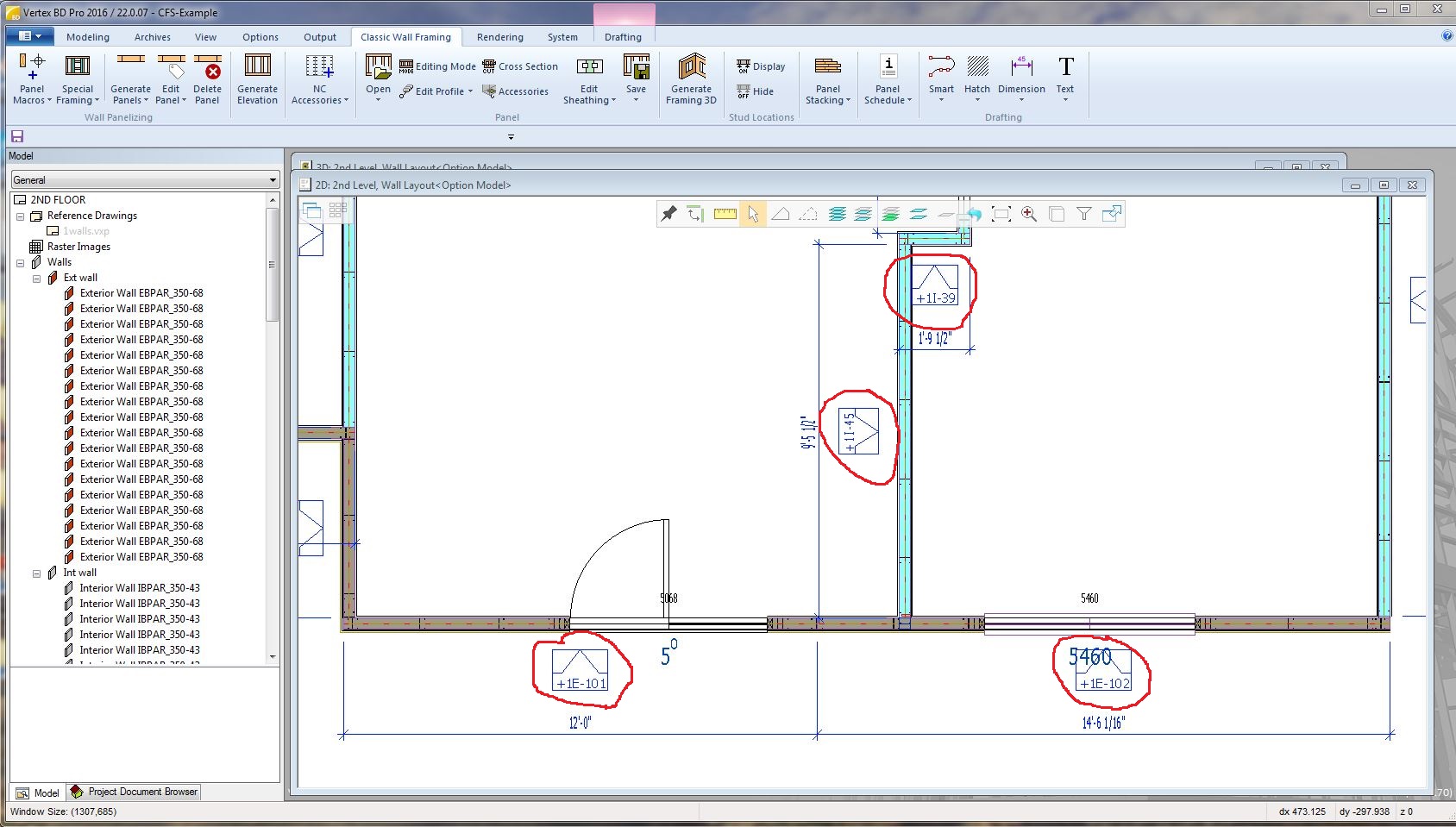
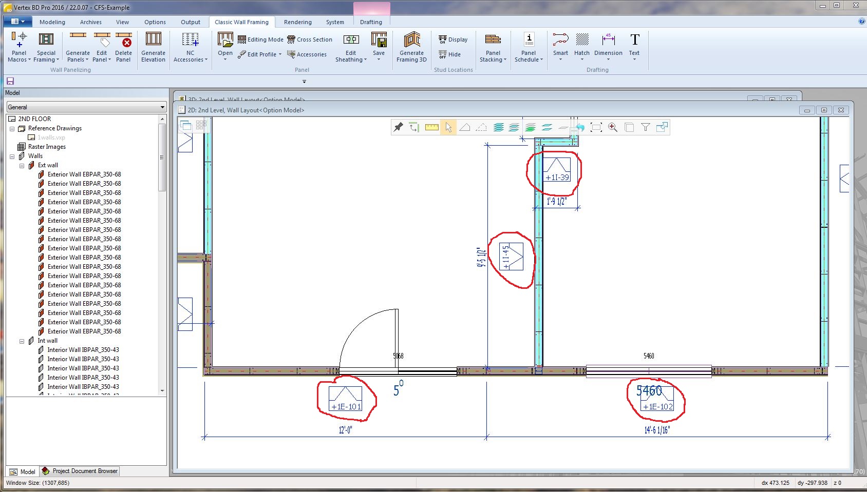
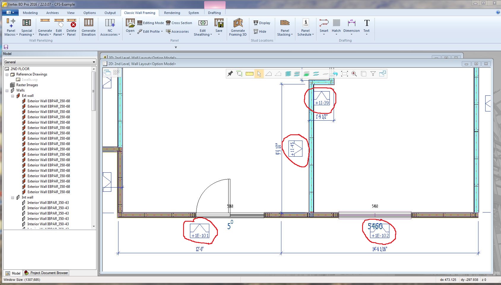
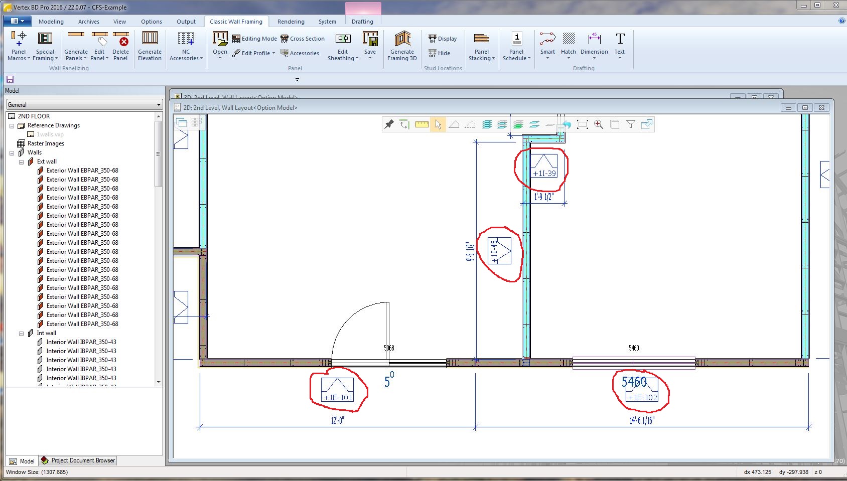
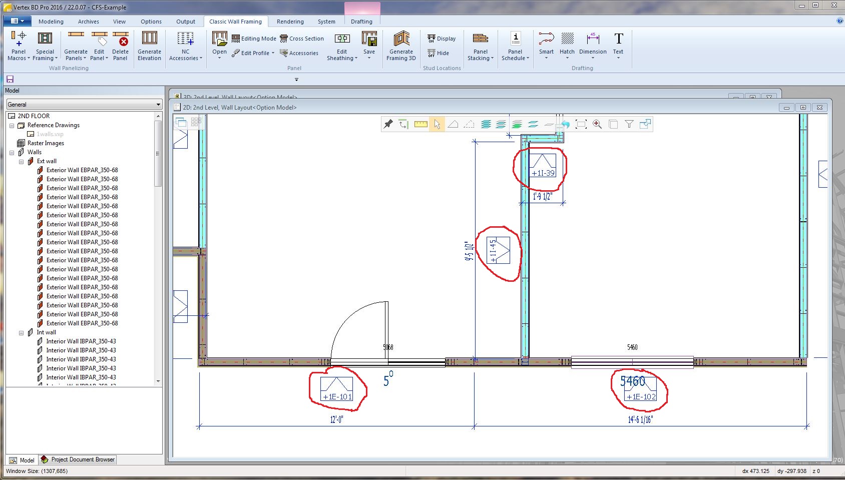
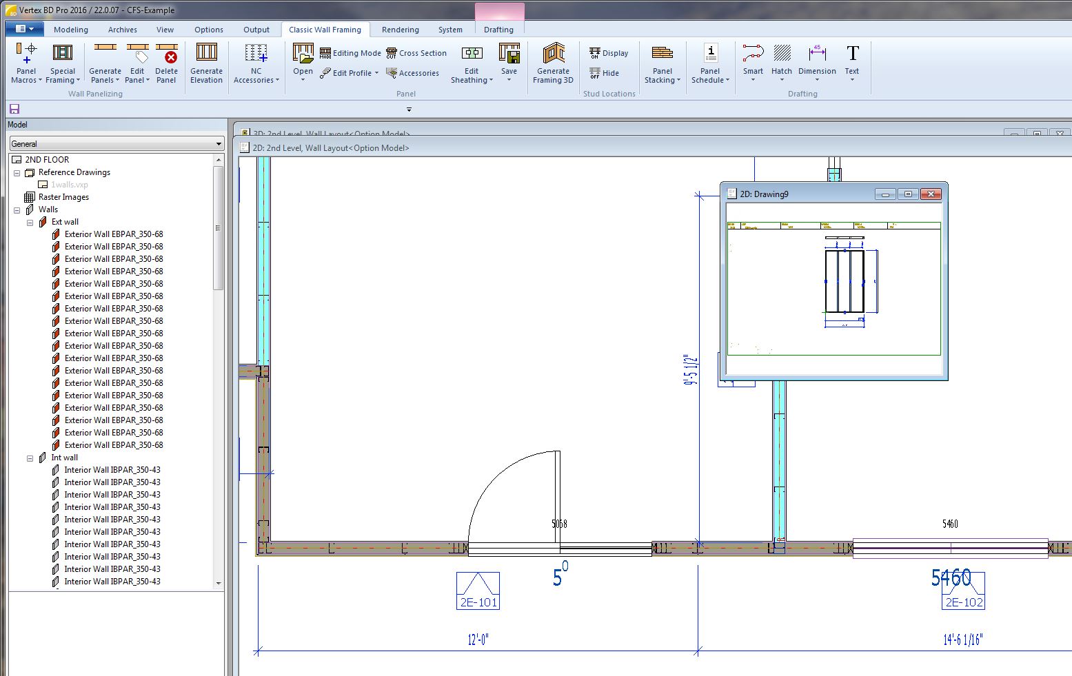
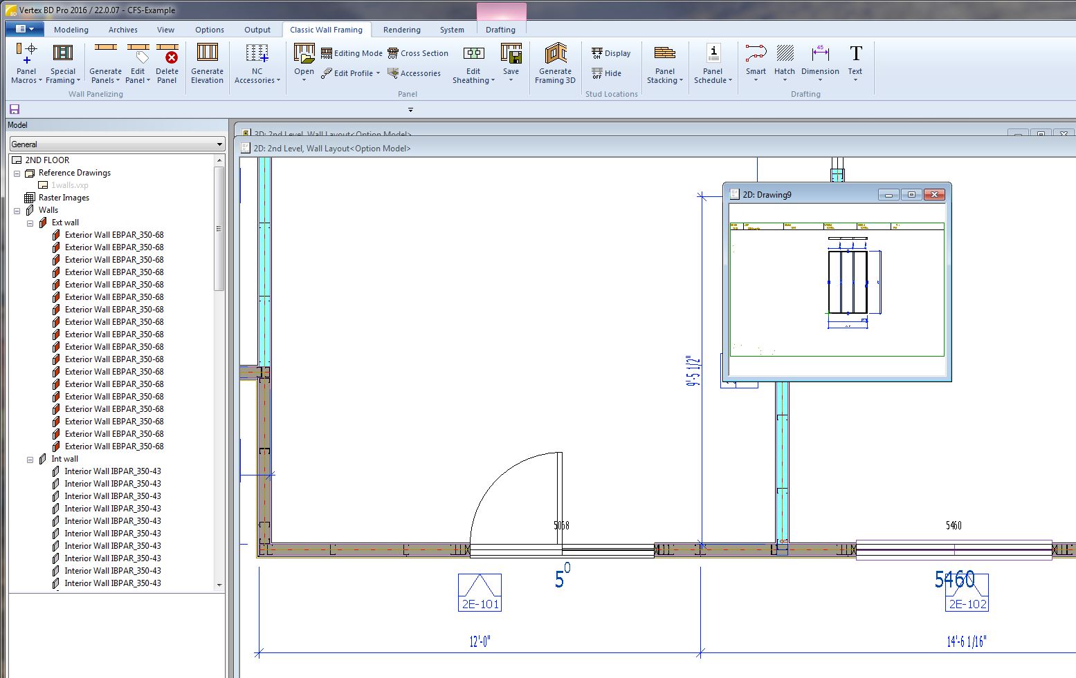
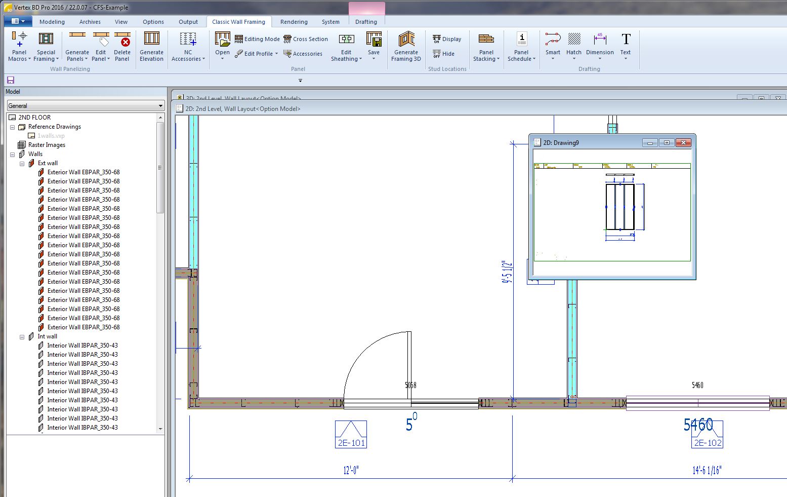
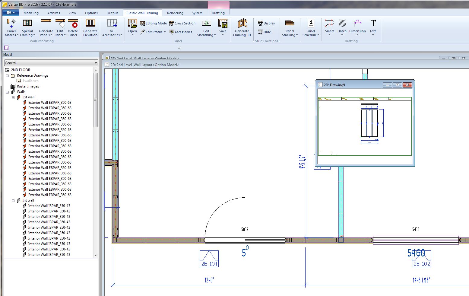
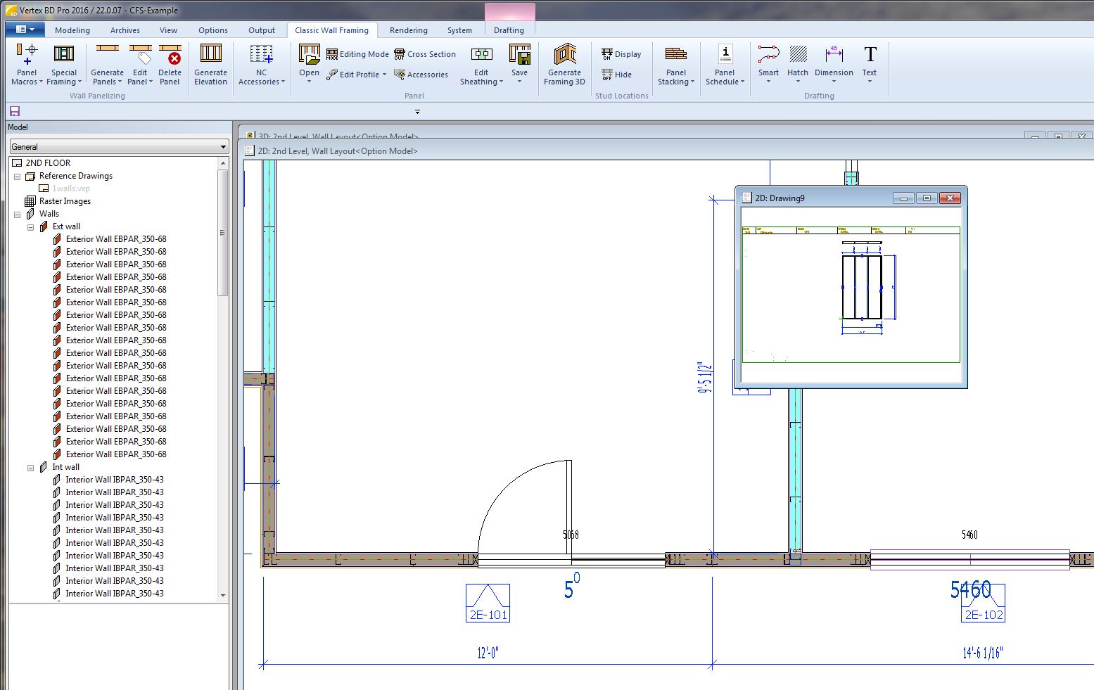
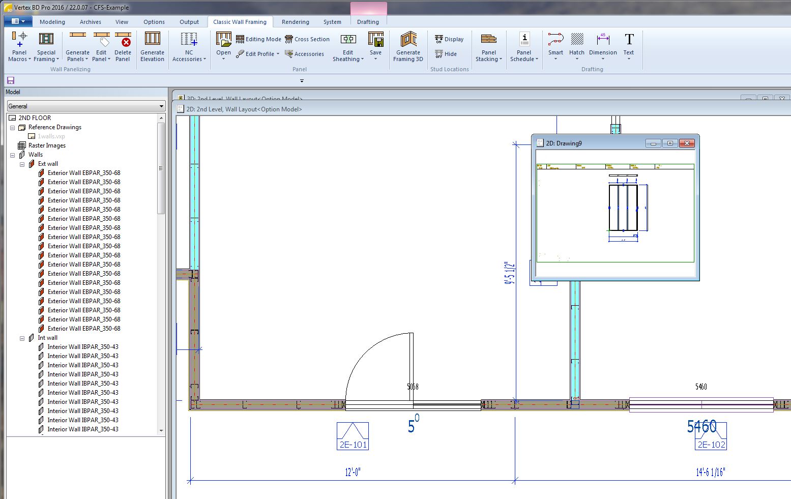
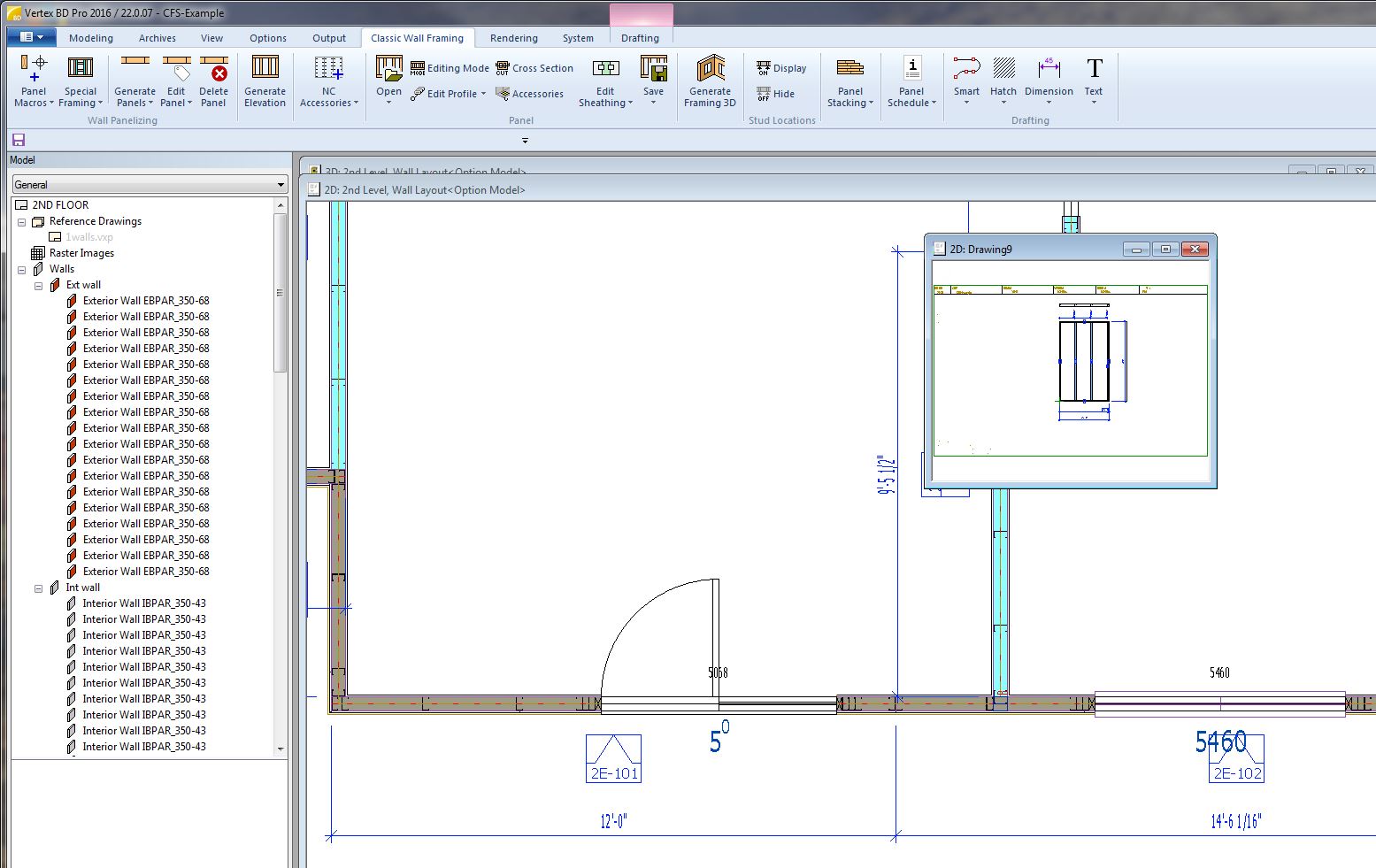
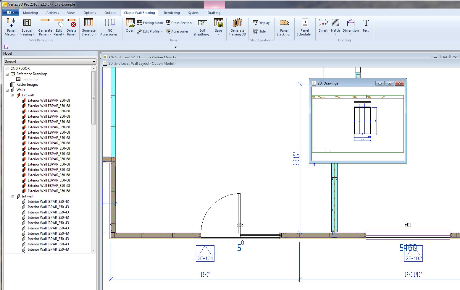
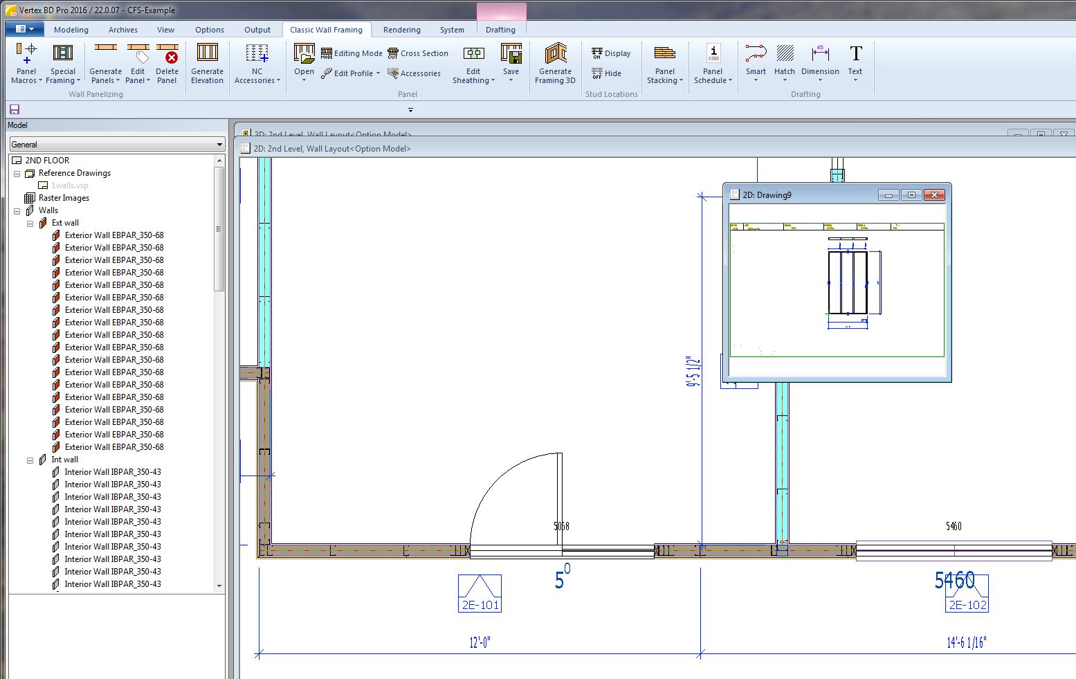
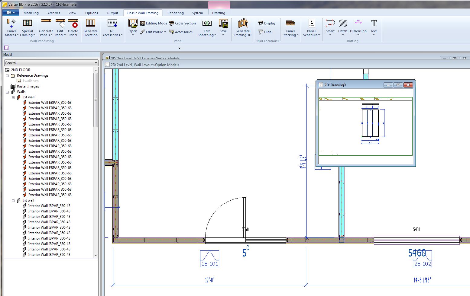
Classic Wall Panels and their layout walls can be copied to another floor without needing to delete, re-panelize, and/or regenerate the wall panel elevation drawings if the wall heights of both levels are the same. The following 2nd Level part plan shows the automatic re-labeling that occurred when the walls and associated wall panels were copied from the 1st to the 2nd Level. Note the plus signs (+) that were automatically added to the beginning of the panel prefixes during the Copy to Another Floor process.
NOTE
If the wall heights are not the same, the copied panels need to be deleted and created again- so the following would not pertain.

The Change Wall Panel Labels utility:
For Classic Wall Panels that have been copied to another floor in which the wall heights are identical, the Change Wall Panel Labels utility can be used to change the panel prefixes to identify the new location.

IMPORTANT
The Change Wall Panel Labels utility needs to rely on the latest list of wall panels. Therefore, it is important to save the project immediately before running this utility. This is because the latest list of wall panels is updated whenever a project is saved. So, it's also a good idea to save the project after Change Wall Panel Labels is run.
Upon running the Change Wall Panel Labels utility, a dialogue screen showing all of the unique Old Label (panel prefixes) for the active drawing is created.

The New Label fields allow typing in the new label (panel prefix).
For this example: +1E- and +1I- will be changed to 2E- and 2I- ,respectively.

Use the Change field check-box toggle Y/N to confirm Yes/No. Select OK to run.
- Select YES to confirm the change

In addition to the plan's wall panel labels being updated, each wall panel elevation drawing file is automatically opened, updated, and saved with the new panel ID. The old panel drawing files are automatically deleted.

